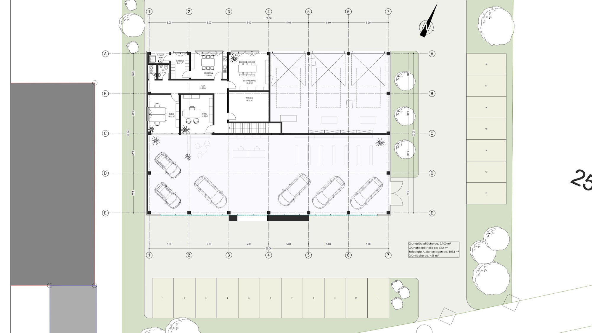
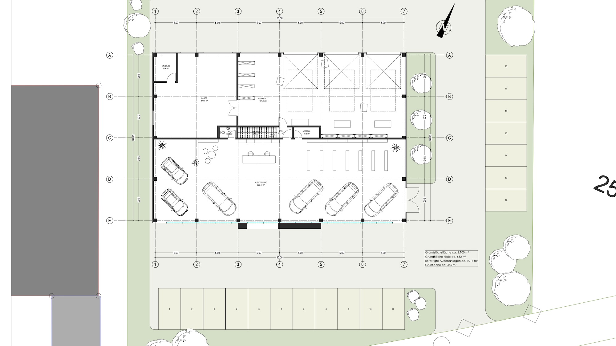
Entwurfskonzept Werkstatt mit Ausstellung

Beschreibung
Bauherr
Private Bauherren - Kontakt auf Anfrage
Planung:
2020
Unsere Leistungen:
LPH 1 - LPH 2 nach HOAI
Abmessungen:
ca. 20 x 30m
Brutto Rauminhalt:
ca. 3.600 m3
Nutzfläche:
ca. 600 m2