Neubau modernes Flachdachhaus

Ein Weiße Kubus, modern, schlicht und energetisch optimiert, so lässt sich das Einfamilienhaus von Familie R. aus Weißenburg treffsicher beschreiben. Auf zwei oberirdischen Etagen bieten die knapp 160 qm Wohnfläche ausreichend Platz für die vierköpfige Familie.
Das kubische Flachdachhaus steht in Weißenburg in leichter Hanglage, so dass das Carport aus Sichtbeton quasi als versetztes Geschoss die Brücke zwischen Keller und Erdgeschoss schlägt.
Im Keller ist die zeitgemäße Haustechnik mit Wärmepumpe untergebracht. Weiterhin ausreichend Platz für Hobbys und natürlich Stauraum.
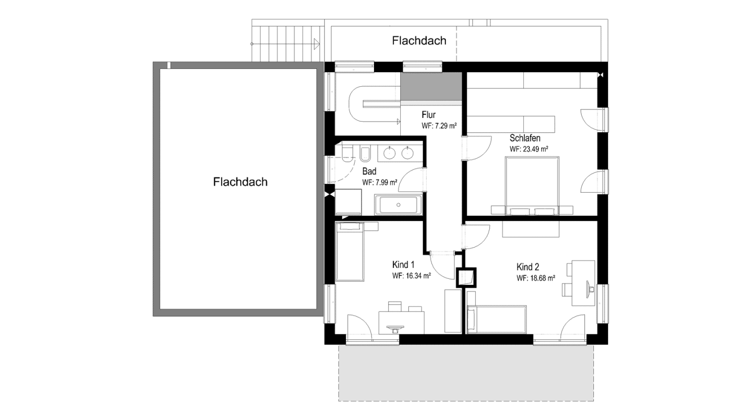
Im Obergeschoss bietet der große Balkon mit filigranem Glasgeländer den Kindern eine tollen Freiluftspielplatz. Der Grundriss gestaltet sich kompakt und klar strukturiert. Hochwertige Materialien unterstreichen die schlichte Eleganz des Hauses.
Beschreibung
Private Bauherren - Kontakt auf Anfrage
2014
LPH 1 - LPH 8 nach HOAI
ca. 11,50 x 10,00 m
ca. 160 m2
ca. 75 m2