Neubau Lackierzentrum Donauwörth

Auf einem ca. 7.500 qm großen Grundstück in Donauwörth entstand 2016 eines der modernsten Lackierzentren der Region.
Die Firma Karosserie und Lackzentrum Donauwörth GmbH & Co.KG lackiert darin Fahrzeuge bis zur Größe eines Kleintransporters sowie Fahrzeugteile als Zulieferer für die Automobilindustrie und Industrieteile.
Als betreuendes Planungsbüro übernahm hochplan die komplette Planung, Ausschreibung, Vergabe und Bauüberwachung.
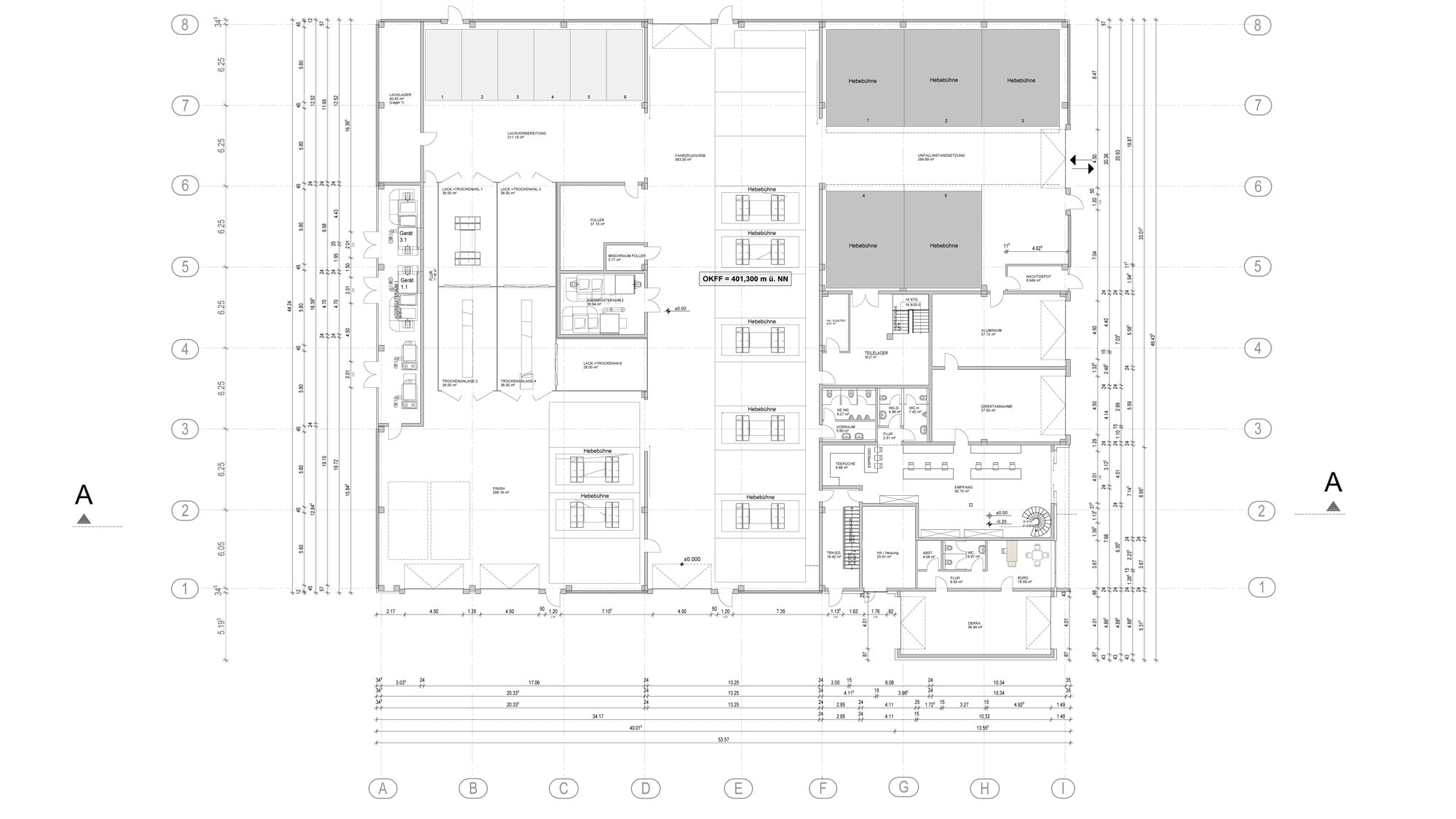
Der Neubau der Industriehalle beinhaltet mehrere Nutzungseinheiten u.a. Lackierbereich, Unfallinstandsetzung, KFZ Prüfstelle und Bürotrakt.
Die zu lackierenden Fahrzeuge und Teile werden in der Fahrzeugvorbereitung grob für den Lackiervorgang hergerichtet, bei größeren Fahrzeugschäden findet vorher eine Bearbeitung in der Unfallinstandsetzung satt. Pro Arbeitstag werden im Schnitte 12-15 Fahrzeuge lackiert.
Jeder Arbeitsplatz/Füllerarbeitsplatz ist mit einer Hebebühne ausgestattet.
In der KFZ Prüfstelle werden 2-3 Mitarbeiter Schadensgutachten, Fahrzeugprüfungen und Hauptuntersuchungen durchführen.
Die Lackvorbereitung dient dem Feinherrichten der Fahrzeuge und Teile, z.B. Abkleben und Ähnliches. Der Lack wird manuell mit Spritzpistole aufgetragen. Dieser Vorgang findet in 3 geschlossenen, kombinierten Lackier-/Trockenkabinen statt, die über eine eigene Lüftungsanlage verfügen. Unmittelbar schließen sich 2 Trockenkabinen an, in denen der Lack mittels thermischer Behandlung getrocknet wird. Im Finish wird die Güte der Lackoberfläche überprüft, und es finden Nacharbeiten, wie beispielsweise Polieren, statt.
Die gesamte Lackiertechnik wird von Fa. WOLF Anlagen-Technik GmbH & Co. KG aus Geiselfeld geliefert.
Beschreibung
Karosserie und Lackierzentrum Donauwörth GmbH & Co.KG
2015 - 2016
LPH 1 - LPH 8 nach HOAI
ca. 54 x 50 m
ca. 17.200 m3
ca. 2.600 m2