Neubau moderne Flachdachvilla

Das moderne Einfamilienhaus liegt in einer exponierten Lage in Weißenburg. Der Bauherr wünschte sich ein modernes Gebäude mit großen Glasflächen, um den tollen Blick über Weißenburg aus möglichst jeden Zimmer einzufangen.
Modernste Haustechnik wie Bus-System und Multiroom-Audio sind ebenso integriert wie ein komplettes Heimkino im Keller.
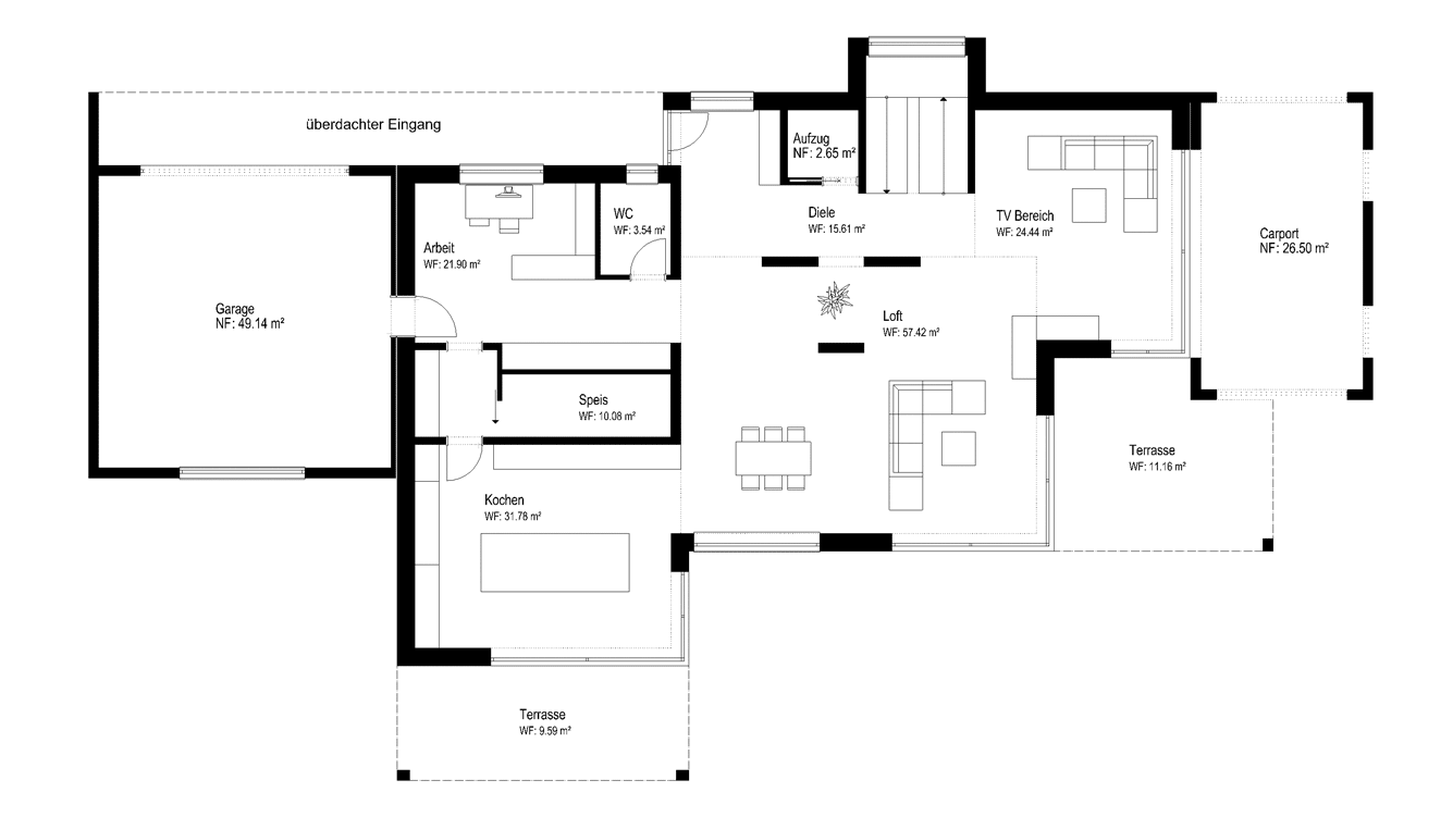
Das kubische Gebäude mit Flachdach intergiert sich optimal in die starke Hanglage und nutzt geschickt die Verbindung von Wohnraum und gestaffelten Terrassen. Das loftähnliche Erdgschoss integregriert neben Koch- und Arbeitsbereich auch eine Doppelgarage und ein vom Wohnzimmer sichtbares Carport. Als Autofreund hat der Bauherr so stets sein "Liebling" vom Wohnbereich im Blick.
Beschreibung
Private Bauherren - Kontakt auf Anfrage
2014 - 2015
LPH 1 - LPH 8 nach HOAI
ca. 19 x 15,60 m
ca. 375 m2
ca. 50 m2